Подробный обзор ЖК «Фотограф» в Ленобласти со всеми плюсами и минусами
Оглавление
- О жилом комплексе
- Цены
- Архитектура
- Планировки и отделка
- Инфраструктура комплекса
- Транспорт
- О застройщике
- О городе Мурино
- Резюме
- Предложения застройщиков поблизости
«Фотограф» — жилой комплекс комфорт-класса на северо-востоке от Санкт-Петербурга, в городе Мурино. В комплексе запланированы детский сад, магазины, соседский центр и благоустроенные дворы с зонами для отдыха и спорта. ЖК состоит из трёх 16-этажных корпусов, в которых можно купить квартиру с черновой или чистовой отделкой. Планировки — от студий до трёхкомнатных. Цены на жильё стартуют от 5,8 млн рублей. Подробнее о комплексе — в нашем обзоре.
Оглавление
- О жилом комплексе
- Цены
- Архитектура
- Планировки и отделка
- Инфраструктура комплекса
- Транспорт
- О застройщике
- О городе Мурино
- Резюме
- Предложения застройщиков поблизости
Оглавление
ToggleО жилом комплексе
В жилом комплексе «Фотограф» спроектированы коммерческие помещения на первых этажах, колясочные в холлах, подземный паркинг, безопасный закрытый двор со спортивными и детскими площадками для разных возрастов, лаундж- и фото-зонами, пешеходными дорожками и озеленением. Также на территории построят муниципальный детский сад.
В пешей доступности есть необходимая инфраструктура — школы, детские сады, супермаркеты и кафе, остановки общественного транспорта, пешеходная аллея для прогулок. До станции метро «Девяткино» — 20 минут ходьбы.
Сдача ЖК запланирована на IV квартал 2025 года.
Цены
По данным сервиса Яндекс недвижимость на апрель 2025 года, самая доступная квартира в продаже — студия площадью 28,2 кв.м. Её цена — 5,8 млн рублей.
Самая дорогая квартира в комплексе — трёхкомнатная площадью 95,5 кв.м, которая стоит 19,6 млн рублей.
Средняя стоимость квадратного метра в самых маленьких квартирах (студиях) составляет 218,1 тыс. рублей, а в самых больших (трёхкомнатных) — 171,8 тыс. рублей.
Цены на квартиры в ЖК (по данным сервиса Яндекс Недвижимость и сайта застройщика)
|
Количество комнат |
Площадь, м² |
Минимальная стоимость, млн ₽ (апрель 2025) |
Средняя цена за 1 м², тыс. ₽ (март 2025) |
|
Студия |
от 24,88 |
5,85 |
218,1 |
|
1 |
от 37,78 |
7,6 |
194,8 |
|
2 |
от 58,43 |
11,33 |
180,6 |
|
3 |
от 82,75 |
14,81 |
171,8 |
Для сравнения возьмём аналогичные комплексы в том же районе. Например, в ЖК Lampo метр в студиях и однокомнатных квартирах в среднем стоит 208-215 тыс. рублей. В квартале ID Murino II стоимость квадрата в студиях составляет 169,1 тыс. рублей, в трёхкомнатных — 153,9 тыс. рублей.
-
16,38 млн ₽ Мурино, проспект Авиаторов Балтики, 23к3
-
20,05 млн ₽ Мурино, Ручьёвский проспект, 1/24
-
21,3 млн ₽ Мурино, проспект Авиаторов Балтики, 23к1
-
14,25 млн ₽ Мурино, проспект Авиаторов Балтики, 23к3
-
18,79 млн ₽ Мурино, Ручьёвский проспект, 1/24
-
12,32 млн ₽ Мурино, проспект Авиаторов Балтики, 23к3
-
15,07 млн ₽ Мурино, Ручьёвский проспект, 1/24
-
14,6 млн ₽ Мурино, Ручьёвский проспект, 1/24
-
5,99 млн ₽ Мурино, Ручьёвский проспект, 1/24
-
12,3 млн ₽ Мурино, проспект Авиаторов Балтики, 23к3
-
13,2 млн ₽ Мурино, пр. Ручьёвский / ул. Екатерининская
-
8,3 млн ₽ Мурино, проспект Авиаторов Балтики, 23к3
-
8,21 млн ₽ Мурино, проспект Авиаторов Балтики, 23к3
-
4,69 млн ₽ Мурино, Ручьёвский проспект, 1/24
-
7,78 млн ₽ Мурино, Ручьёвский проспект, 1/24
-
5,8 млн ₽ Мурино, Ручьёвский проспект, 1/24
Архитектура
Жилой комплекс «Фотограф» состоит из трёх 16-этажных домов, которые образуют приватные дворы. Дома возводятся по кирпично-монолитной технологии. Оптимальный микроклимат в здании поддерживается за счёт навесного вентилируемого фасада, который защищает от жары летом и холода зимой.
1/3
Проект ЖК
Сдержанное цветовое решение фасадов связано с названием комплекса, которое отсылает к истории появления чёрно-белой фотографии. Уникальная особенность фасадов — авторская плитка с фотоизображениями.
Ход строительства ЖК «Фотограф»
- Июль-Сентябрь 2025 года
-
-
-
-
-
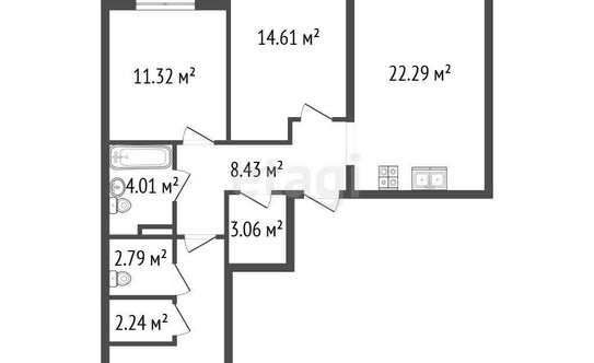
Планировки и отделка
В проекте представлены квартиры от студий до трёхкомнатных. Площадьи жилья — от 24,9 до 95,5 кв.м. Есть стандартные и европланировки с кухней-гостиной. Можно выбрать квартиру с мастер-спальней, гардеробной, раздельным или совмещённым, двумя санузлами, окном в ванной комнате, одной или двумя лоджиями.
Планировки квартир в ЖК «Фотограф»
92 3-комнатная21 395 318 ₽от 232 557 ₽ за м2
92 3-комнатная18 717 090 ₽от 203 668 ₽ за м2
91.7 3-комнатная18 790 150 ₽от 204 908 ₽ за м2
91.9 3-комнатная18 933 640 ₽от 205 800 ₽ за м2
92.4 3-комнатная18 758 420 ₽от 203 013 ₽ за м2
91.6 3-комнатная18 526 850 ₽от 202 479 ₽ за м2
Застройщик предлагает два варианта отделки — черновую и чистовую. Вид отделки зависит от корпуса и квартиры.
Черновая отделка включает:
- бетонную стяжку пола;
- гидроизоляцию пола в санузлах;
- установку радиаторов с терморегулятором;
- электропроводку во всех помещениях с установкой розеток и выключателей;
- установку двухтарифных счетчиков, сенсорного видеодомофона, интернет-кабеля для роутера, электрощита в прихожей.
Черновая отделка
Чистовая отделка представлена в трёх вариантах: «Графит», «Карамель» и «Скандинавия». В неё входят:
- натяжные потолки;
- светлые нейтральные обои;
- ламинат в жилых комнатах и коридорах;
- керамическая плитка в санузлах;
- сантехника и смесители, светильники в санузлах;
- межкомнатные двери с фурнитурой.
В третьем корпусе ЖК продаются квартиры с укомплектованной кухней.
1/3
Чистовая отделка «Графит»
Инфраструктура комплекса
Входные группы. Входы в дома расположены на уровне земли, они не имеют лестниц и пандусов. Панорамное остекление делает холл светлым и просторным.
Оформление холлов поддерживает общую концепцию комплекса. В отделке используются керамогранит под мрамор, оригинальные светильники и зеркала. На первом этаже первого и третьего корпусов предусмотрены отдельные помещения для хранения колясок.
1/3
Входная группа
Паркинги и кладовые. В комплексе будет подземный паркинг на 92 машиноместа. Есть стандартные и увеличенные семейные места на два автомобиля.
Въезд в паркинг
Двор. Во дворе запланированы воркаут-зона, площадка для паркура, мощёные пешеходные дорожки и лаунж-площадка в форме объектива фотокамеры со скамейками, качелями и гамаками. Также там установят столы для настольного тенниса и подвесные качели. На территории появятся арт-обьекты и фото-зоны (например, тоннель из квадратных арок с подсветкой).
Растения для озеленения двора подобраны так, чтобы радовать жителей не только летом. Ограждение по периметру и камеры видеонаблюдения в комплексе с цифровой системой контроля доступа обеспечат безопасность жителей.
1/3
Двор
Для детей. На территории ЖК уже возводят муниципальный детский сад на 220 мест.
Во дворах предусмотрены игровые площадки для детей разных возрастов. Среди них — песочница, горки, качели, геопластика с тоннелями. Современное игровое оборудование сделано из безопасных и экологичных материалов, а мягкое покрытие делает площадки безопасными.
1/3
Детские площадки
Покупки и отдых. В распоряжении жителей будет соседский центр. В нём можно будет проводить праздники, мастер-классы и спортивные занятия.
На первых этажах выделены коммерческие помещения под магазины, аптеки и различные сервисы.
1/2
Соседский центр
Рядом с комплексом проходит благоустроенная Екатерининская улица — многофункциональное общественное пространство. Любители спокойного отдыха могут прогуляться по липовой аллее с фонтаном, посидеть на скамейках и качелях. Для активного отдыха оборудована трасса для бегунов и велосипедистов.
- ТТатьяна20 декабря 2025Дома с огромным количеством квартир от 500 до 1000. Муравейник. Солнца будет мало. Вид: окна в окна или на ЛЭП, не самый лучший вариант. Ценник завышен. От метро 18-20 минут спокойным шагом. Въезд в паркинг во дворе, тоже не очень хорошо. Могли бы двор сделать без машин совсем. Рядом строится широкополосная, скоростная магистраль, насколько спокойно будет жить рядом с такой трассой? Думаю, не очень, для тех кто хочет тишины и спокойствия у своего дома. Найдутся и люди для которых это является преимуществом, выезд сразу на трассу это же преимущество!? Стоит внимательно взвесить все "ЗА" и "ПРОТИВ".
-
Екатерина Карпушина5 февраляВ целом стильный и концептуальный жк. Отличная отделка мопов, тихие и быстрые лифты, шикарные входные зоны, отличная планировка. У нас там студия длиной в 12 лет. Итоговая планировка значительно лучше, чем была у Ленинградской перспективы. Отлично продуманы вентшахты и разводка труб (все очень аккуратно спрятано). Немного огорчило качество стен (кривые, в ляпах бетона), но не критично, штукатурка все исправит.
-
Дмитрий Кудряшов9 февраляОчередной человейник от компании, внутри красиво, дерево в центре двора летом будет украшать двор особенно, если, конечно, не засохнет, с виду оно неживое. Красивое оформление моп, внутри квартир ужасное качество строительства
-
Юлия Котюк14 сентября 2024Если учесть, что это долгострой, и теперь его наконец, достроили. Красуется нам в окно. Стильная облицовка. Высотности чуть выше желаемой, теперь солнце хуже видно. Место красивое, тут аллея
-
Мария23 апреля 2024Хороший ЖК, симпатично выглядит. Мавис очень активно развивает строительство в этой части Мурино, при этом, видимо, учитывает особенности расположения домов в разных ЖК, чтобы пространство было гармонично: нет эффекта сплошной застройки, есть рекреационные зоны, по Екатерининской чуть за Фотографом сделана очень симпатичная пешеходная аллея с фонариками и качелями, приятно гулять.
Транспорт
Общественный транспорт. Рядом с ЖК есть остановка «Екатерининская улица, 22». От неё можно доехать до станций метро «Девяткино» и «Озерки», а также до Муринского парка. Станция метро «Девяткино» расположена в 23 минутах ходьбы или в 10 минутах на автобусе. Путь на метро до Площади Восстания займёт 25 минут. Также рядом с метро «Девяткино» есть автовокзал и ж/д станция.
Автомобиль. Два выезда на КАД находятся в 3 и 5 км от комплекса. Время в пути по КАД до Финляндского вокзала займёт полчаса без пробок, до Площади Восстания — 35 минут, до аэропорта «Пулково» — 42 минуты.
Ипотека в ЖК «Фотограф»
- от 21,99%Ипотека на новостройку
- от 21,99%Ипотека на вторичное жильё
- от 19,3%Ипотека на новостройку
- от 19,3%Ипотека на вторичное жильё
- от 6%Ипотека с господдержкой для семей с детьми
- от 6%Ипотека для специалистов IT-компаний
О застройщике
ЖК «Фотограф» возводит инвестиционно-строительная группа «МАВИС», основанная в 2006 году. Согласно ЕРЗ, «МАВИС» находится на 2 месте в рейтинге застройщиков Ленобласти по объёмам строительства и на 22 месте — по потребительским качествам ЖК.
В портфолио застройщика — ЖК «Виктория», «Форвард», «Мечта» и другие. На данный момент, кроме ЖК «Фотограф», компания строит в Мурино комплексы «Максималист», «Урбанист», «Авиатор» и «Графика».
Бесплатный подбор новостройкиМы знаем о них всё. Предложим вариант под ваши пожелания и бюджет всего за один звонок. Расскажем об акциях и льготных ставках по ипотеке.
О городе Мурино
Мурино — административный центр Муринского городского поселения Всеволожского муниципального района. Мурино является самым густонаселённым городом Ленинградской области. В 2024 году здесь проживало более 112 тыс. человек.
История района
Поселения на месте современного города Мурино предположительно существовали уже в IX-XII веках и принадлежали финно-угорским племенам. Первый раз селение Мурино упоминается в 1676 году на карте «Ингерманландия: Ивангород, Ям, Копорье, Нотеборг». Эти земли долго были спорной территорией в русско-шведских конфликтах. Лишь в 1721 году, после заключения Ништадского мира, территория была окончательно закреплена за Российской Империей.
Во времена Петра I деревня переходила из рук в руки. В своё время землями владели барон Шафиров, генерал-лейтенант Брюсов, императрица Елизавета Петровна, генерал-майор Дмитриев-Маммонов, баронесса Настасья Поспелова, семья Воронцовых.
В советское время Санкт-Петербург стал разрастаться. К 1970-м годам Мурино оказалось фактически на самом краю города. В 1978-м году открылась станция метро «Комсомольская» (сейчас «Девяткино»). В 1997 году Мурино получило статус посёлка, а в 2019 году — статус города.
Мурино. Фото: Красный (Wikimedia Commons)
Инфраструктура района
Комплекс «Фотограф» расположен в окружении почти достроенных и сданных домов, в районе с развитой инфраструктурой.
Образование. За 10 минут от ЖК можно дойти до двух корпусов Муринского центра образования №4, в один из которых входит детский сад. Муринский центр образования №2 и школа №6 — в 15-20 минутах ходьбы.
Кроме детского сада, который строят на территории ЖК, в пешей доступности есть ещё несколько муниципальных и частных садов.
Медицина. Мурино обслуживает Токсовская клиническая межрайонная больница для взрослых и детей. Два отделения больницы открыты на Воронцовском бульваре. За 15 минут на машине можно доехать до Ново-Девяткинской поликлиники.
Поблизости от ЖК открыты медцентры «Семейный Доктор», «ДиСа Мед», «Доктор», «ЛучМед», стоматологии «Мой Зубной», «Ренидент», лаборатории «Ситилаб», «Хеликс» и другие.
Покупки и отдых. В пешей доступности есть сетевые супермаркеты, пункты выдачи онлайн-заказов, кафе Mr. Yo!, Supramen, «Вкусно — и точка», «Теремок», «Евразия», ресторан «ПхалиХинкали», пекарня «Все дома», кофейня Mr. Black Coffee и другие. До ТРЦ «ЭкоПарк» можно доехать на авто за 8 минут, до «Меги» — за 13 минут.
Ближайший парк «Лаврики» — в 10 минутах пешком. Муринский парк и парк Сосновка — в 15 минутах езды. За 30-40 минут на машине можно доехать многих живописных мест области. Например, всесезонного курорта «Охта Парк», Токсовских озёр с экотропами, парка «Зубровник».
Муринский парк. Фото: Ingvar-fed (Wikimedia Commons)
Спорт. Поблизости от ЖК открыты студия стретчинга Stretching Siluet, клуб единоборств BullForce, студии йоги «Чарующая» и YogiRoom, фитнес-клубы Urus fitness, «Грин Фит», «NeoДжоуль», студия гимнастики «Эстетика Спорта», фитнес-клуб с бассейном Fitness House и другие.
Экологическая обстановка
В октябре 2024 года в Мурино проводили замеры концентраций вредных веществ в воздухе и не выявили превышений. В Мурино нет крупных промышленных предприятий, но в соседнем Новом Девяткино расположены Северная ТЭЦ, бетонный завод, производство металлообработки, завод акустических конструкций и другие. Но минус в том, что в Мурино мало зелёных зон, которые помогали бы очищать воздух.
Муринский парк. Фото: Ingvar-fed (Wikimedia Commons)
Будущее района
У станции метро «Девяткино» построят транспортно-пересадочный узел, который соединит разные виды транспорта: метро, электричку, автобусы, маршрутки. Это поможет решить проблему с очередями к общественному транспорту. В 2025 году рядом с метро появится новый торговый центр.
Недостатки района
В Мурино мало парков и зелёных зон, в которых можно погулять — только пешеходная Екатерининская улица и парк Лаврики. Однако за полчаса на машине можно доехать до многих интересных природных мест в области — озёр, лесопарков, горнолыжных курортов.
Резюме
Жилой комплекс комфорт-класса «Фотограф» возводят во Всеволожском районе Ленинградской области, в городе Мурино. Проект состоит из трёх жилых домов, подземного паркинга, закрытого озеленённого двора с фото-зонами, детскими площадками. Также в комплексе появятся муниципальный детский сад и соседский центр.
ЖК расположен в развитой части города. В 10-20 минутах ходьбы — несколько школ и детских садов, магазины, кафе, фитнес-центры, медклиники, пункты выдачи онлайн-заказов, остановки и станция метро «Девяткино». Из недостатков стоит отметить, что в Мурино мало зелёных зон и мест для прогулок.
Предложения застройщиков поблизости
|
Название ЖК |
Цена квартир, млн ₽ |
Застройщик |
Площадь, м² |
Сроки сдачи |
Транспортная доступность |
Отделка |
|
iD Murino III |
от 3,4 до 11,7 |
EUROINVEST DEVELOPMENT |
от 23,5 до 77 |
IV кв. 2025 – IV кв. 2026 |
33 мин. на транспорте до метро Девяткино |
White box |
|
«Новые Лаврики» |
от 3,9 до 12,4 |
«Самолёт» |
от 20,6 до 82,8 |
II кв. 2025 – IV кв. 2026 |
29 мин. на транспорте до метро Девяткино |
Без отделки, под ключ |
|
«Максималист» |
от 4,5 до 18,6 |
«МАВИС» |
от 22,5 до 100,9 |
IV кв. 2027 – IV кв. 2029 |
27 мин. на транспорте до метро Девяткино |
Черновая, чистовая |
|
«Мурино Клаб» |
от 4,6 до 16,4 |
MIRAMAR Development |
от 23,1 до 87,3 |
сдан |
23 мин. на транспорте до метро Девяткино |
Без отделки |
|
ID Murino II |
от 3,8 до 5,3 |
EUROINVEST DEVELOPMENT |
от 24,6 до 34,7 |
сдан |
22 мин. на транспорте до метро Девяткино |
White box |
|
«Полис ЛАВрики» |
от 4,1 до 10,6 |
«ГК Полис» |
от 22,1 до 54,7 |
II кв. 2025, есть сданные |
21 мин. на транспорте до метро Девяткино |
Чистовая, white box |
|
«Авиатор» |
от 4,2 до 10,9 |
«МАВИС» |
от 21,1 до 58 |
I кв. 2027, есть сданные |
17 мин. на транспорте до метро Девяткино |
Черновая, white box, под ключ |
|
Lampo |
от 3,6 до 7,8 |
«Петрострой-Мурино» |
от 20,4 до 50,4 |
сдан |
15 мин. на транспорте до метро Девяткино |
Черновая, white box |
|
«Урбанист» |
от 4,5 до 11,1 |
«МАВИС» |
от 21,8 до 58,4 |
III-IV кв. 2026, есть сданные |
14 мин. на транспорте до метро Девяткино |
Черновая, под ключ |
Материал по теме
Материал по теме
Комментарии0 комментов


